Hlavním záměrem bylo vytvořit jednoduchý levný objekt, který bude možné postavit ve značné míře svépomocí s využitím lehkých dřevěných konstrukcí. Všechny obytné místnosti a vybrané prostory příslušenství mají mít přímý přístup na terén přes kryté zápraží vytvořené vykonzolovanou atikou.
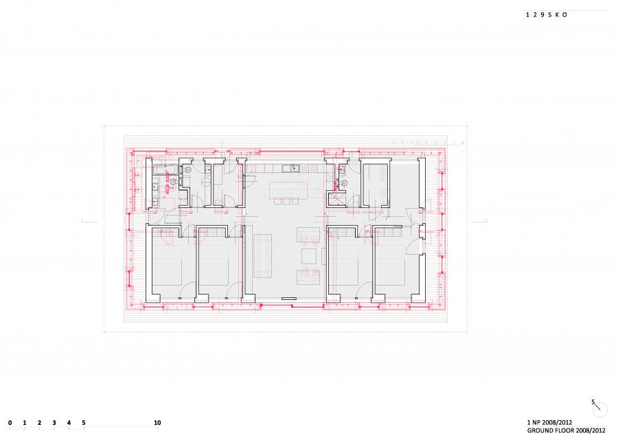
Dispozice je řešena jako trojtrakt, kde střední část slouží jako společný obytný prostor s kuchyní a zároveň provozně i akusticky odděluje prostory ložnic s příslušenstvím.
K objektu je přistavěna lehká ocelová rámová konstrukce plnící funkci odstavného stání. Pod ní lze umístit sklad sportovního vybavení a venkovního nábytku. Tuto plochu lze uzavřít jednoduchou mříží umístěnou po obvodě plochy. V sousedství je umístěna terasa s opěrnou kaskádovou záporovou stěnou pod přilehlou komunikací. Kryté terasy kolem domu jsou provedeny, obdobně jako dřevěné prvky fasády, z modřínu.
Byla zvolena nosná konstrukce v systému 2by4.
Základy tvoří podélné základová deska nebo. Kompletace otvorů budou specifikovány v další fázi. Opláštění objektu je provedeno ze svislých modřínových latí mezi které je vypletena předstěna z vrbového proutí chránící vnější tepelně-izolační vrstvu.
Dispozice je řešena jako trojtrakt, kde střední část slouží jako společný obytný prostor s kuchyní a zároveň provozně i akusticky odděluje prostory ložnic s příslušenstvím.
K objektu je přistavěna lehká ocelová rámová konstrukce plnící funkci odstavného stání. Pod ní lze umístit sklad sportovního vybavení a venkovního nábytku. Tuto plochu lze uzavřít jednoduchou mříží umístěnou po obvodě plochy. V sousedství je umístěna terasa s opěrnou kaskádovou záporovou stěnou pod přilehlou komunikací. Kryté terasy kolem domu jsou provedeny, obdobně jako dřevěné prvky fasády, z modřínu.
Byla zvolena nosná konstrukce v systému 2by4.
Základy tvoří podélné základová deska nebo. Kompletace otvorů budou specifikovány v další fázi. Opláštění objektu je provedeno ze svislých modřínových latí mezi které je vypletena předstěna z vrbového proutí chránící vnější tepelně-izolační vrstvu.












