Tyčka, plaňka, lať: …tři rodné sestry. Nejstarší je plaňka. Slouží od nepaměti v plotě. Plaňky jsou služebnice ryze venkovské. Tyčka bude asi mladší ze sester . Je řezaná na míru je úhledná. Tyčku je vidět v plotech malých městeček. Lať je nejmladší a nejvíc na sebe dbá. Je rovná jako lať a často se natírá, aby nám dlouho její mládí vydrželo. Stejně je to marný. Po několika letech se stejně prohne pod tíhou zodpovědnosti hlídače…Vladimír Preclík
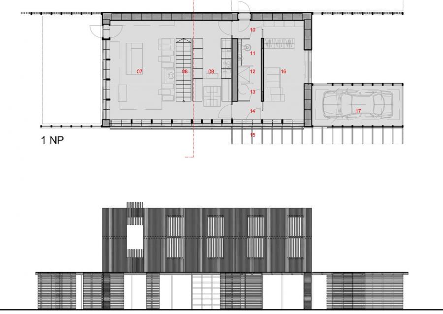
Poloha domu vychází ze zvyku umístění severní strany objektu co nejblíže hraně sousedícího pozemku tak, aby byla maximalizována plocha před „zápražím“ s výhledem do vlastní zahrady. Dispozice odpovídá tradiční koncepci lidové architektury s rozdělením funkcí do příčného troj traktu. Rozvody médií jsou centralizovány do středové příčné stěny, která zároveň plní funkci výměníku tepla. Tepelné a vlhkostní poměry dřevostavby stabilizují zavěšené panely z hutněné zeminy umístěné v interiéru před severní obvodovou stěnu. Nosná konstrukce je provedena v systému 2by4 (Platform frame). Rozměrová modulace modřínových latí tvořících plášť fasády je zdvojnásobena pro stínící prvky, které tak vytváří pozvolné přechody mezi pevnými a prosklenými částmi. Různé členění fasády přízemí a patra je dáno rozdílnými požadavky na optické propojení exteriéru a interiéru. Horizontální členění fasády a posuvných stínících panelů v přízemí (společenská část) umožňuje panoramatické propojení se zahradou oproti intimní části ložnic a pokojů v patře, kde svislé dělení lamel okenic brání bočním pohledům.
vizualizace
VisualArch
Poloha domu vychází ze zvyku umístění severní strany objektu co nejblíže hraně sousedícího pozemku tak, aby byla maximalizována plocha před „zápražím“ s výhledem do vlastní zahrady. Dispozice odpovídá tradiční koncepci lidové architektury s rozdělením funkcí do příčného troj traktu. Rozvody médií jsou centralizovány do středové příčné stěny, která zároveň plní funkci výměníku tepla. Tepelné a vlhkostní poměry dřevostavby stabilizují zavěšené panely z hutněné zeminy umístěné v interiéru před severní obvodovou stěnu. Nosná konstrukce je provedena v systému 2by4 (Platform frame). Rozměrová modulace modřínových latí tvořících plášť fasády je zdvojnásobena pro stínící prvky, které tak vytváří pozvolné přechody mezi pevnými a prosklenými částmi. Různé členění fasády přízemí a patra je dáno rozdílnými požadavky na optické propojení exteriéru a interiéru. Horizontální členění fasády a posuvných stínících panelů v přízemí (společenská část) umožňuje panoramatické propojení se zahradou oproti intimní části ložnic a pokojů v patře, kde svislé dělení lamel okenic brání bočním pohledům.
vizualizace
VisualArch






