marek
topic
profil
portfolio
služby
kontakt
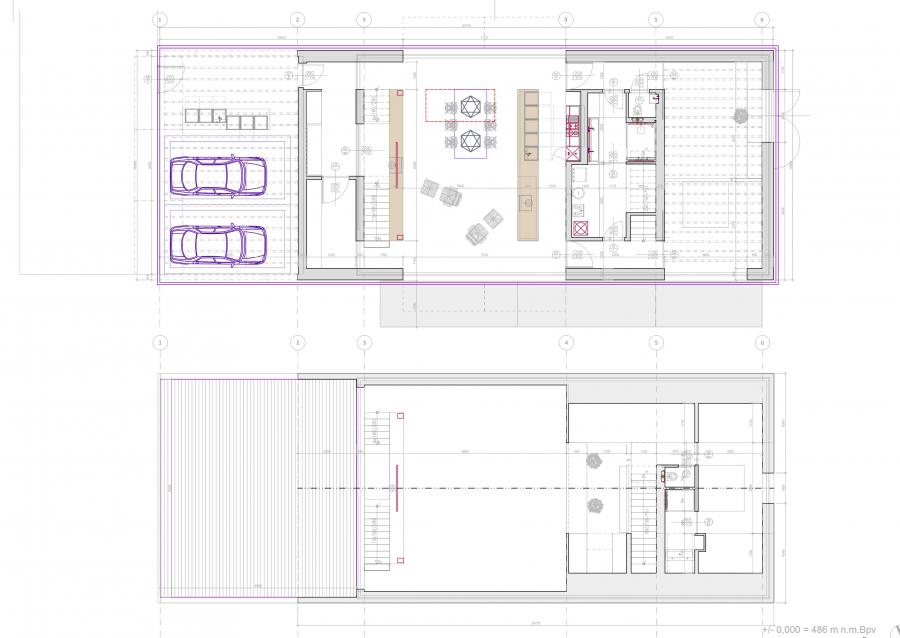
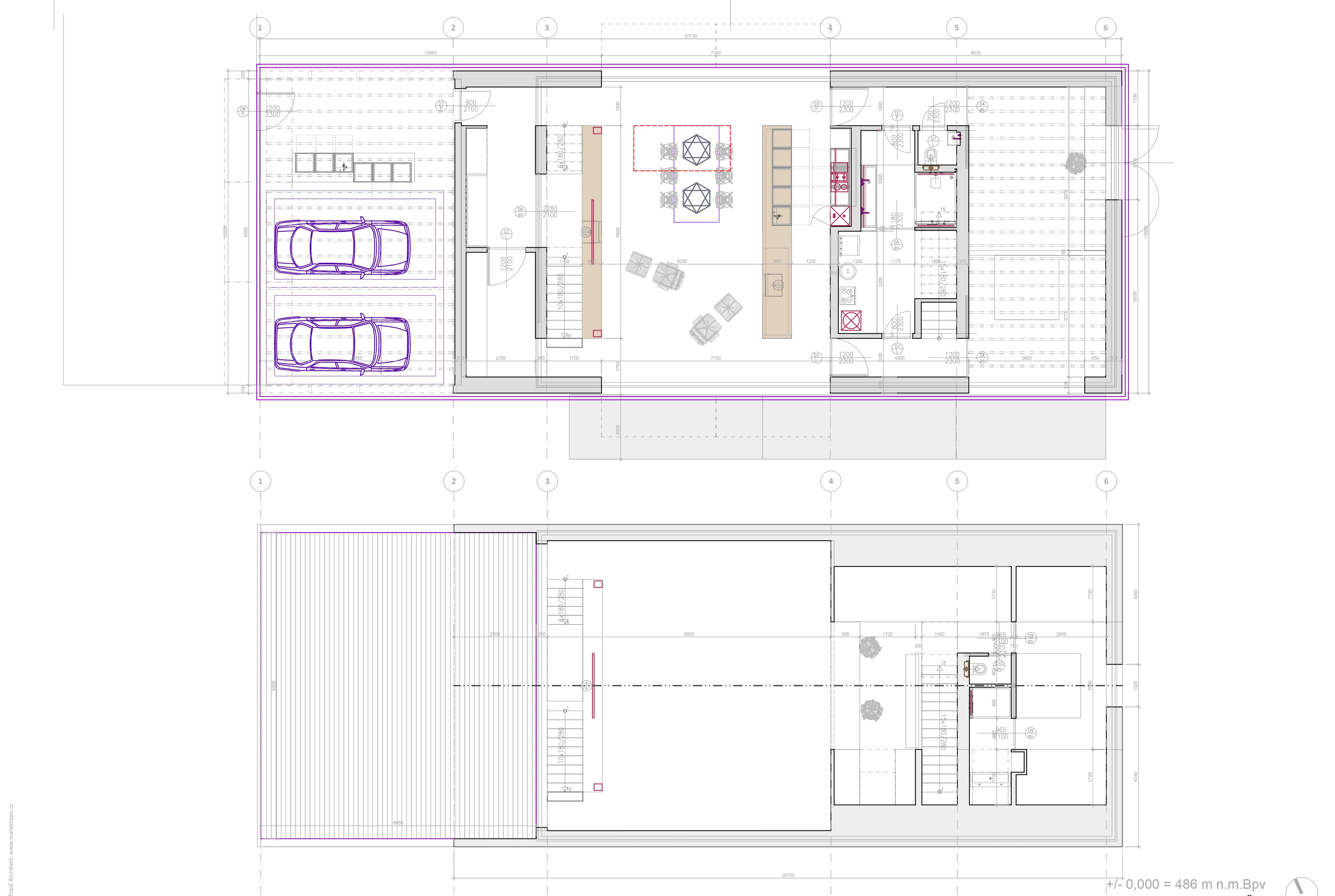
Dům RT v18
Dům RT v18
CZ, Skuhrov
11/2012
Související:
DR2 Nízkoenergetický dřevěný dům
CZ 01/2006
Vonšovský mlýn Stavební úpravy a adaptace objektu na ubytovací zařízení
CZ, Valy, Mariánské Lázně 08/2007
Dům SKO
CZ, Skoupý 01/2007
DR1 Nízkoenergetický bytový dům v Třeboni
CZ, Třeboň 01/2006
Dům MAC
CZ, Červený Kostelec 06/2012
Dům DRA
CZ, Dražka 04/2018
Dům OT2
CZ, Solenice 09/2015
Slunečný vršek
CZ, Praha 07/2006
MUDr. House
CZ, Sedlčany 05/2011
Dům RAR
CZ, Praha 06/2003
Dům nad cihelnou
CZ, Jaroměřice 03/2015
Dům VAL
CZ, Valy, Mariánské Lázně 01/2013
1
/11
Pro posun mezi snímky použijte šipky
a
. Pro zavření prezentace stiskněte klávesu
ESC
Přihlášení
E-Mail:*
Heslo:*