Rekonstrukce a dostavba rodinného domu
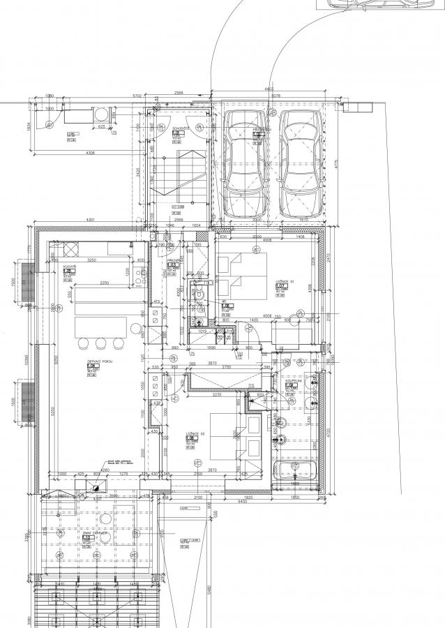
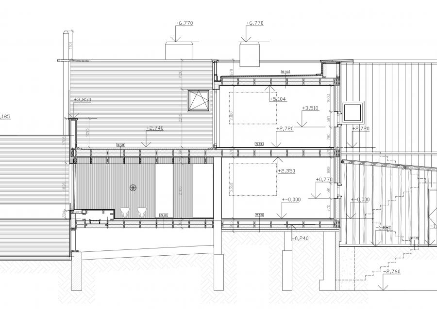
Byla připojena hmota zimní zahrady k dispozici přízemí, na jihovýchodní straně v přízemí obdobně koupelna, na severu bylo doplněno schodiště a na severovýchodní straně provedena nástavba kuchyně v pozici nad bývalou verandou. Pro parkováni byl objekt doplněn o přístřešek v severovýchodní části. Dispozice objektu byla v 2NP ponechána vyjma kuchyně a vstupu ze severního schodiště. Pokoj na jihu a WC na severu dispozice byl také zachován. Fasáda byla opatřena dřevěným obkladem se zateplením.
Byla připojena hmota zimní zahrady k dispozici přízemí, na jihovýchodní straně v přízemí obdobně koupelna, na severu bylo doplněno schodiště a na severovýchodní straně provedena nástavba kuchyně v pozici nad bývalou verandou. Pro parkováni byl objekt doplněn o přístřešek v severovýchodní části. Dispozice objektu byla v 2NP ponechána vyjma kuchyně a vstupu ze severního schodiště. Pokoj na jihu a WC na severu dispozice byl také zachován. Fasáda byla opatřena dřevěným obkladem se zateplením.













