Objekt tzv. Vonšovského mlýna (Wonschamühle), zmiňovaného poprvé roku 1782 v příloze válečné mapy císaře Josefa II., se nachází západně od obce Valy (Alte Schanz) na hranici dvou pohoří v Kynžvartském pasu.
Původní mlýn nacházející se na potoku Vonše (Kosí p.) měl původně, dnes již vyřazený, náhon o průtoku 0,095m3/s. Osazen byl jedním kolem se spádem 2,8m o výkonu 2,3 ks. S velkou pravděpodobností byla původní stavba horskou odnoží francko-švábského domu v půdorysné konfiguraci „franckého“ dvorce nebo vzhledem k blízkému sousedství Karlovarska tzv."Vierseithofu" tj. dvorce volně vestavěného do krajiny a uzavřeného ze všech čtyřech stran. V blízkém okolí se střetává tepelská a chebská oblast, kde se v první nachází roubené stavby s tzv. podkrovním roubeným věncem a prkenným štítem – lomenicí, zatímco v druhé převážně vyspělé hrázděné-rámové patrové stavby se štíty domů s hustě kladeným šachováním, které byly vystavěné převážně na přelomu 18-19. století (1790-1820).
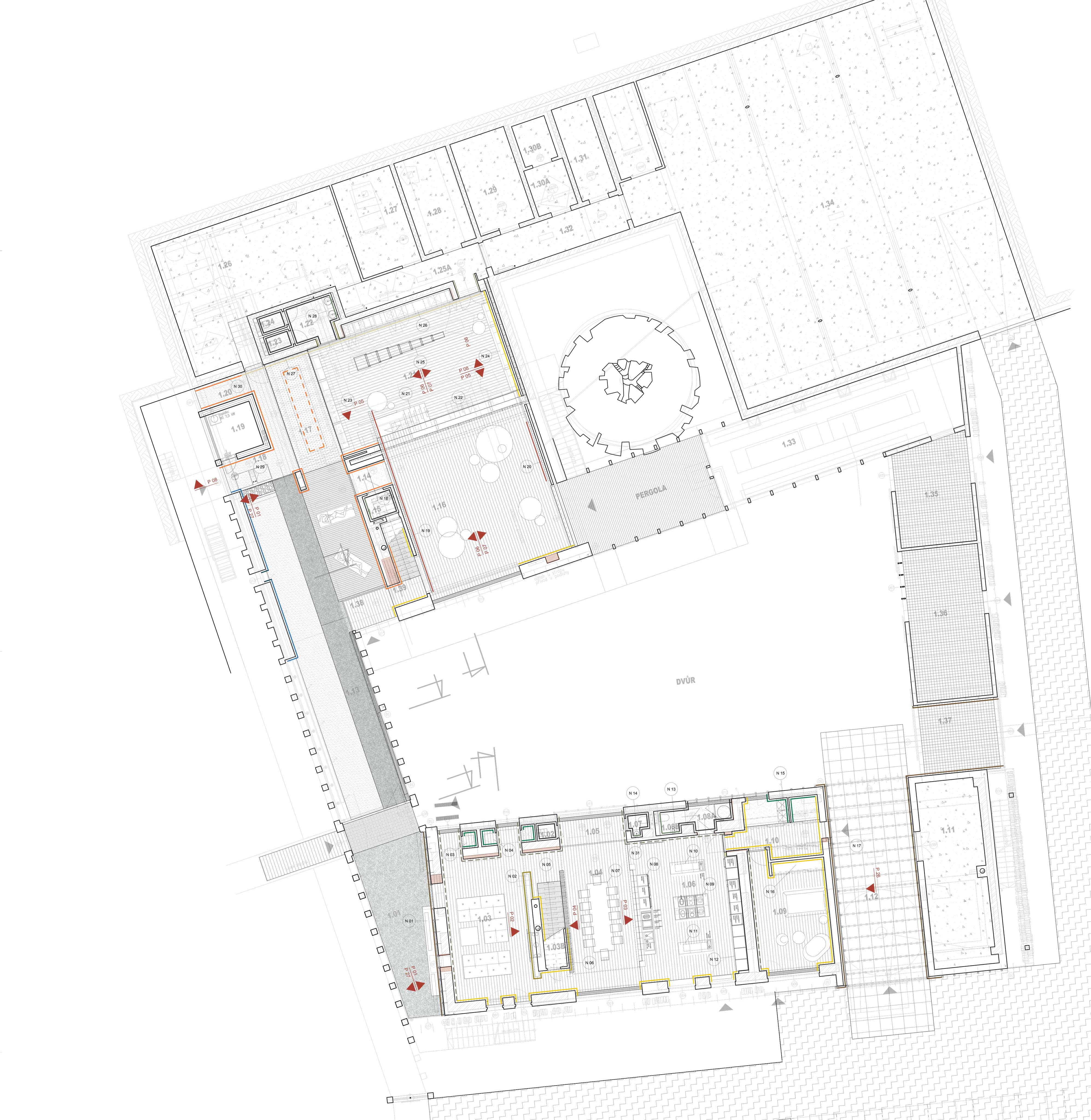
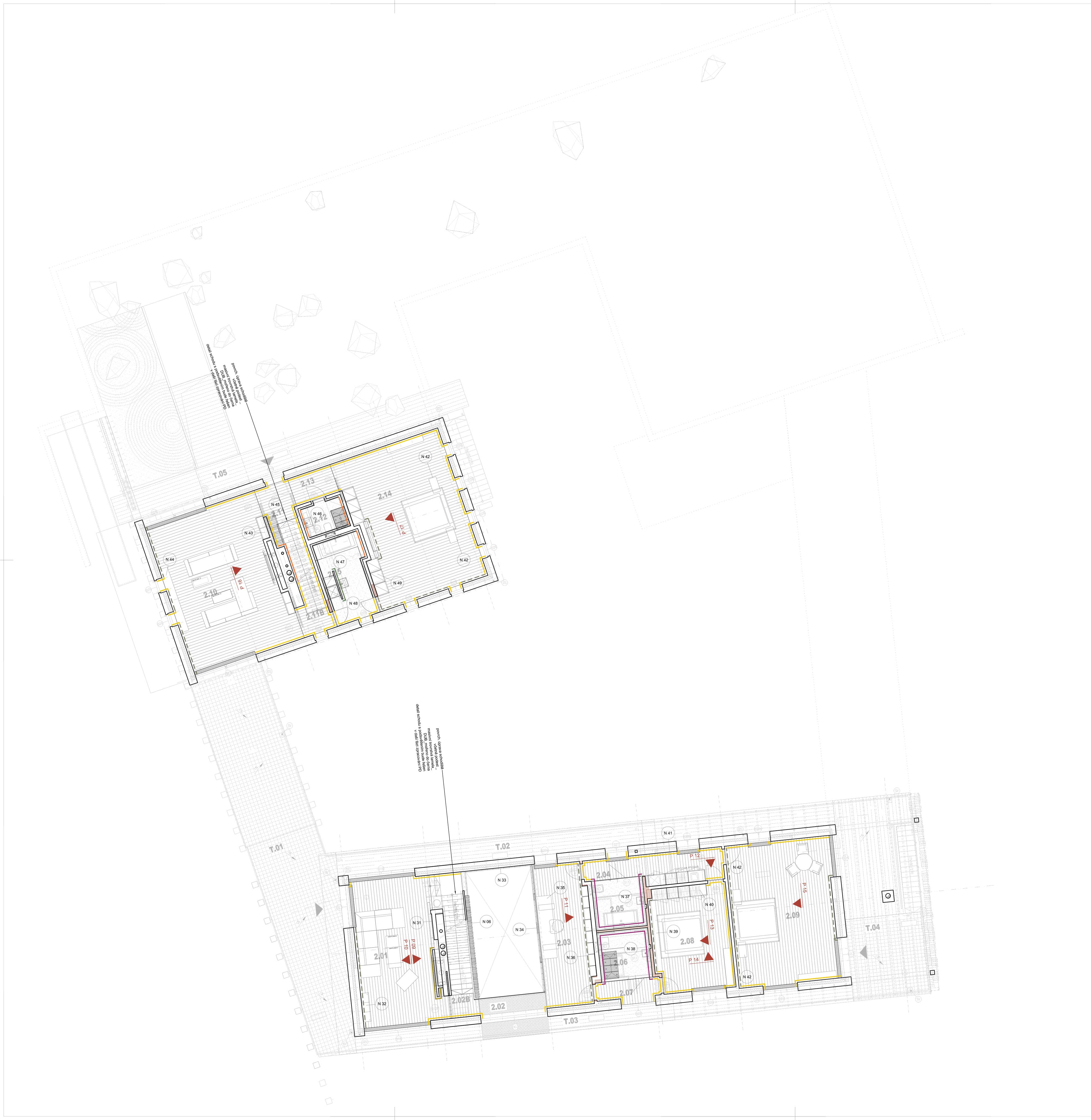
Stávající objekty mají dvě nadzemní podlaží a nejsou podsklepeny. Stavby, vyjma příčné hospodářské přístavby s pultovou střechou, mají sedlové střechy. Historické budovy byly zničeny. Stávající objekty vybudované roku 1996 jsou umístěny na původní půdorysné stopě historických základů bez zjevných tektonických vazeb nebo dobových citací.
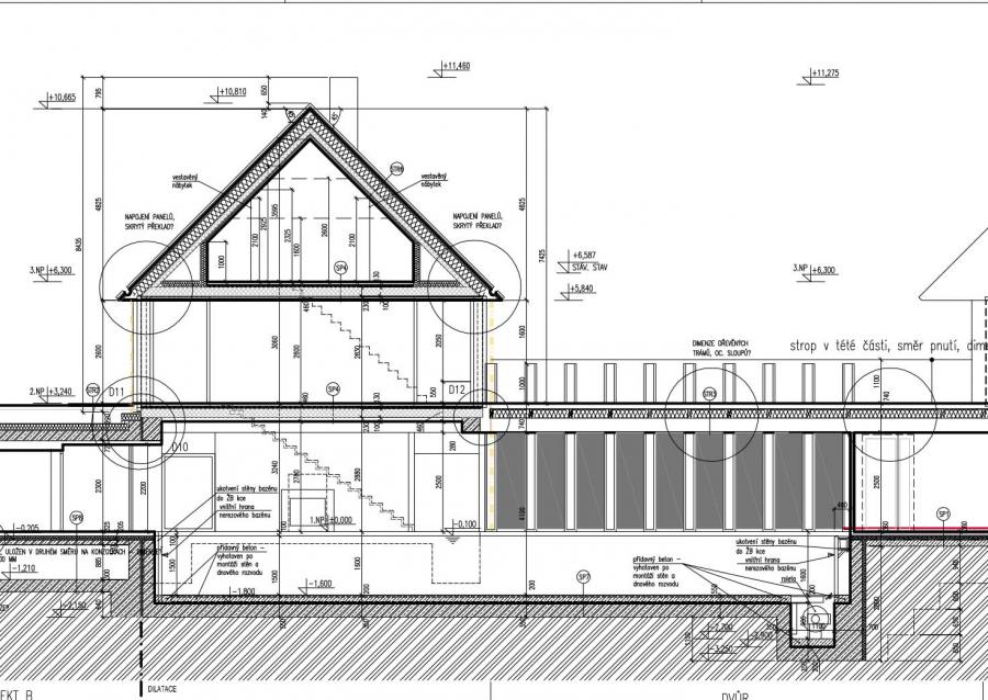
Na základě těchto indicií se v návrhu předpokládá obnova historického prostorového řešení s uzavřeným dvorcem a patrovými objekty se sedlovou střechou. V jižní a severní části atria jsou situovány patrové objekty s obytnou a ubytovací funkcí. Východní část obsahuje všechny hospodářské, technické a část skladových prostorů. Na západ je umístěn bazén v odlehčené prosklené „kolonádě“ v souběhu a kontrastu s obnoveným venkovním náhonem. Vnitřní atrium bude z cca 50% zatravněno a zadlážděno jako reminiscence starých užitkových dvorů a doplněno stromy a vodními prvky. Tvarosloví, sklon střech, základní proporce a velikosti otvorů ve štítech vychází z rozměrů standardních hrázděných konstrukcí Chebského typu. Průběžná pavlač v patře, navazující na terasy nad bazénem a hospodářskými objekty, odkazuje k výše zmiňovanému typu roubených staveb Tepelského typu s pozdější nástavbou. Většina objektů je navržena jako lehký montovaný dřevěný skelet v konstrukčním systému 2 by 4 - platform frame. Všechny exteriérové pláště, fasády, okenice a střechy budou provedeny dřevěným obkladem z Modřínových lišt, prken a roštů.
investor
Vonšovský mlýn, s.r.o.
autor
Mgr. A. Marek Topič
stavební část
Atelier SAEM, s.r.o.
Ing. Michal Procházka
interiéry
Jakub Tejkl
Marek Topič
Původní mlýn nacházející se na potoku Vonše (Kosí p.) měl původně, dnes již vyřazený, náhon o průtoku 0,095m3/s. Osazen byl jedním kolem se spádem 2,8m o výkonu 2,3 ks. S velkou pravděpodobností byla původní stavba horskou odnoží francko-švábského domu v půdorysné konfiguraci „franckého“ dvorce nebo vzhledem k blízkému sousedství Karlovarska tzv."Vierseithofu" tj. dvorce volně vestavěného do krajiny a uzavřeného ze všech čtyřech stran. V blízkém okolí se střetává tepelská a chebská oblast, kde se v první nachází roubené stavby s tzv. podkrovním roubeným věncem a prkenným štítem – lomenicí, zatímco v druhé převážně vyspělé hrázděné-rámové patrové stavby se štíty domů s hustě kladeným šachováním, které byly vystavěné převážně na přelomu 18-19. století (1790-1820).
Stávající objekty mají dvě nadzemní podlaží a nejsou podsklepeny. Stavby, vyjma příčné hospodářské přístavby s pultovou střechou, mají sedlové střechy. Historické budovy byly zničeny. Stávající objekty vybudované roku 1996 jsou umístěny na původní půdorysné stopě historických základů bez zjevných tektonických vazeb nebo dobových citací.
Na základě těchto indicií se v návrhu předpokládá obnova historického prostorového řešení s uzavřeným dvorcem a patrovými objekty se sedlovou střechou. V jižní a severní části atria jsou situovány patrové objekty s obytnou a ubytovací funkcí. Východní část obsahuje všechny hospodářské, technické a část skladových prostorů. Na západ je umístěn bazén v odlehčené prosklené „kolonádě“ v souběhu a kontrastu s obnoveným venkovním náhonem. Vnitřní atrium bude z cca 50% zatravněno a zadlážděno jako reminiscence starých užitkových dvorů a doplněno stromy a vodními prvky. Tvarosloví, sklon střech, základní proporce a velikosti otvorů ve štítech vychází z rozměrů standardních hrázděných konstrukcí Chebského typu. Průběžná pavlač v patře, navazující na terasy nad bazénem a hospodářskými objekty, odkazuje k výše zmiňovanému typu roubených staveb Tepelského typu s pozdější nástavbou. Většina objektů je navržena jako lehký montovaný dřevěný skelet v konstrukčním systému 2 by 4 - platform frame. Všechny exteriérové pláště, fasády, okenice a střechy budou provedeny dřevěným obkladem z Modřínových lišt, prken a roštů.
investor
Vonšovský mlýn, s.r.o.
autor
Mgr. A. Marek Topič
stavební část
Atelier SAEM, s.r.o.
Ing. Michal Procházka
interiéry
Jakub Tejkl
Marek Topič















