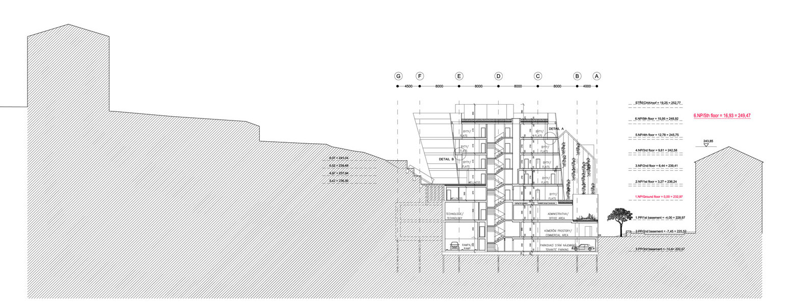
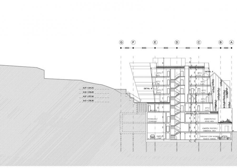
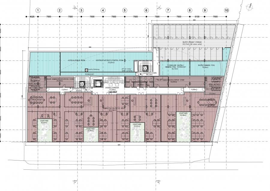
Bytový dům Holečkova

Bytový dům Holečkova

CZ, Praha

05/2006

investor
Irnerio Praha s.r.o.

autoři
DaM, s.r.o.
Vratislav Ansorge
Stella Boechat Cordeiro
Richard Doležal
Marek Topič
Roland Vančó

stavební část
Atelier SAEM, s.r.o.

Související:

1/18
Pro posun mezi snímky použijte šipky a . Pro zavření prezentace stiskněte klávesu ESC

Přihlášení