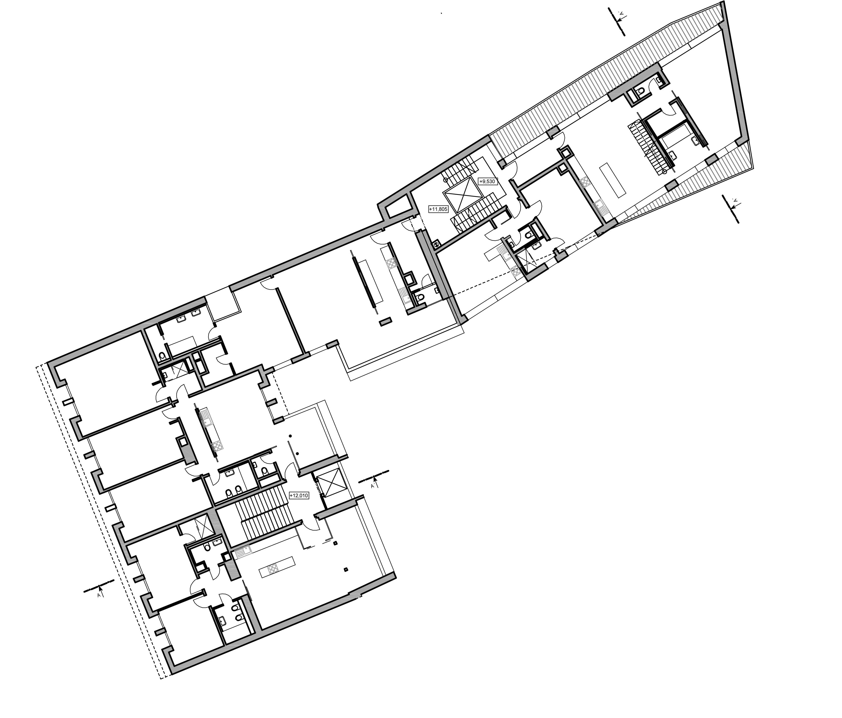
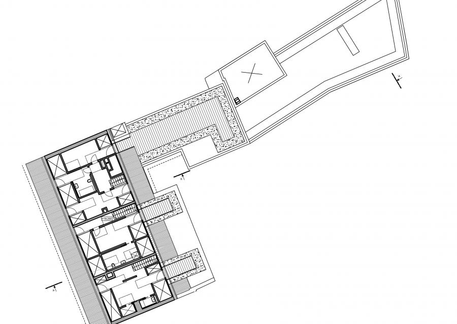
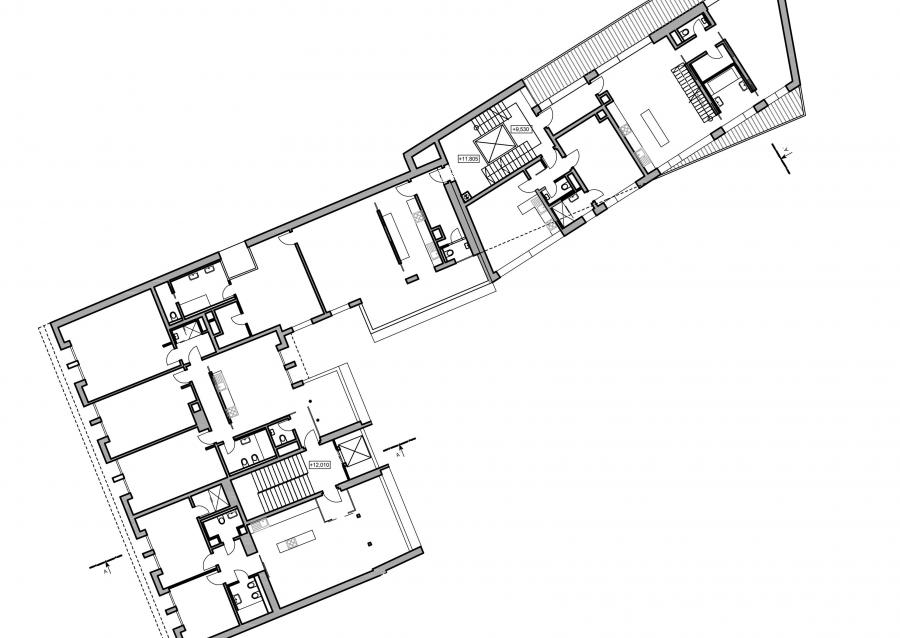
Navrhovaná stavba se skládá ze stávajícího 3 podlažního uličního objektu s dvorním křídlem , který bude rekonstruován a bude na něm provedena dvoupodlažní nástavba s podkrovím. Dále dvorního 4 podlažního objektu novostavby, který nahradí stávající dvoupodlažní objekt který bude odstraněn. Posledním objektem bude ve dvoře samostatně stojící objekt novostavby mechanického parkovacího zakladače umístění při jižní hranici pozemku.
Stávající uliční objekt je bytový dům se čtyřmi nadzemními podlažími, podkrovím a jedním podzemním podlažím. Přízemí objektu je využíváno po poslední přestavbě z roku 1998 jako kanceláře a suterén objektu jako zasedací místnost a školící středisko. Objekt bude rekonstruován a bude na něm provedena dvoupodlažní nástavba s podkrovím. V přízemí objektu budou umístěny obchodní prostory a ve dvorním křídle recepce fitness a wellness centra, které je navrženo v suterénu objektu. Dále je v přízemí objekt umístěna místnost pro nádoby na tříděný a směsný odpad z obou objektů stavby. Ostatních nadzemních patech jsou byty, z nich byty v 5. np a podkroví budou mezonetové. Byty ve dvorním křídle jsou přístupné ze schodiště dvorní novostavby.
Při severní straně dvora se nachází stávající podsklepený dvoupodlažní objekt, který bude odstraněn a na jeho místě bude vybudován nový 4 podlažní bytový dům s jedním podzemním podlažním. V přízemí domu vzhledem k nedostatečným hodnotám oslunění jsou navrženy pronajímatelné kancelářské prostory se samostatným vstupem ze dvora.
Dvorní objekt mechanického parkovacího zakladače je jednopodlažní nadzemní nepodsklepený objekt ve kterém je umístěn technologický soubor parkovacího zakladače pro osobní auta, ve kterém jsou parkována auta ve dvou vrstvách.
investor
Brüder Henn Praha, s.r.o.
autoři
Richard Doležal
Agata Kiszka
Petr Malinský
Marek Topič
HIP, stavební část, koordinace profesí
M3M s.r.o.
Ing. Martin Kovařík
Ing. Michal Pokorný
Navrhovaná stavba se skládá ze stávajícího 3 podlažního uličního objektu s dvorním křídlem , který bude rekonstruován a bude na něm provedena dvoupodlažní nástavba s podkrovím. Dále dvorního 4 podlažního objektu novostavby, který nahradí stávající dvoupodlažní objekt který bude odstraněn. Posledním objektem bude ve dvoře samostatně stojící objekt novostavby mechanického parkovacího zakladače umístění při jižní hranici pozemku.
Stávající uliční objekt je bytový dům se čtyřmi nadzemními podlažími, podkrovím a jedním podzemním podlažím. Přízemí objektu je využíváno po poslední přestavbě z roku 1998 jako kanceláře a suterén objektu jako zasedací místnost a školící středisko. Objekt bude rekonstruován a bude na něm provedena dvoupodlažní nástavba s podkrovím. V přízemí objektu budou umístěny obchodní prostory a ve dvorním křídle recepce fitness a wellness centra, které je navrženo v suterénu objektu. Dále je v přízemí objekt umístěna místnost pro nádoby na tříděný a směsný odpad z obou objektů stavby. Ostatních nadzemních patech jsou byty, z nich byty v 5. np a podkroví budou mezonetové. Byty ve dvorním křídle jsou přístupné ze schodiště dvorní novostavby.
Při severní straně dvora se nachází stávající podsklepený dvoupodlažní objekt, který bude odstraněn a na jeho místě bude vybudován nový 4 podlažní bytový dům s jedním podzemním podlažním. V přízemí domu vzhledem k nedostatečným hodnotám oslunění jsou navrženy pronajímatelné kancelářské prostory se samostatným vstupem ze dvora.
Dvorní objekt mechanického parkovacího zakladače je jednopodlažní nadzemní nepodsklepený objekt ve kterém je umístěn technologický soubor parkovacího zakladače pro osobní auta, ve kterém jsou parkována auta ve dvou vrstvách.
investor
Brüder Henn Praha, s.r.o.
autoři
Richard Doležal
Agata Kiszka
Petr Malinský
Marek Topič
HIP, stavební část, koordinace profesí
M3M s.r.o.
Ing. Martin Kovařík
Ing. Michal Pokorný












