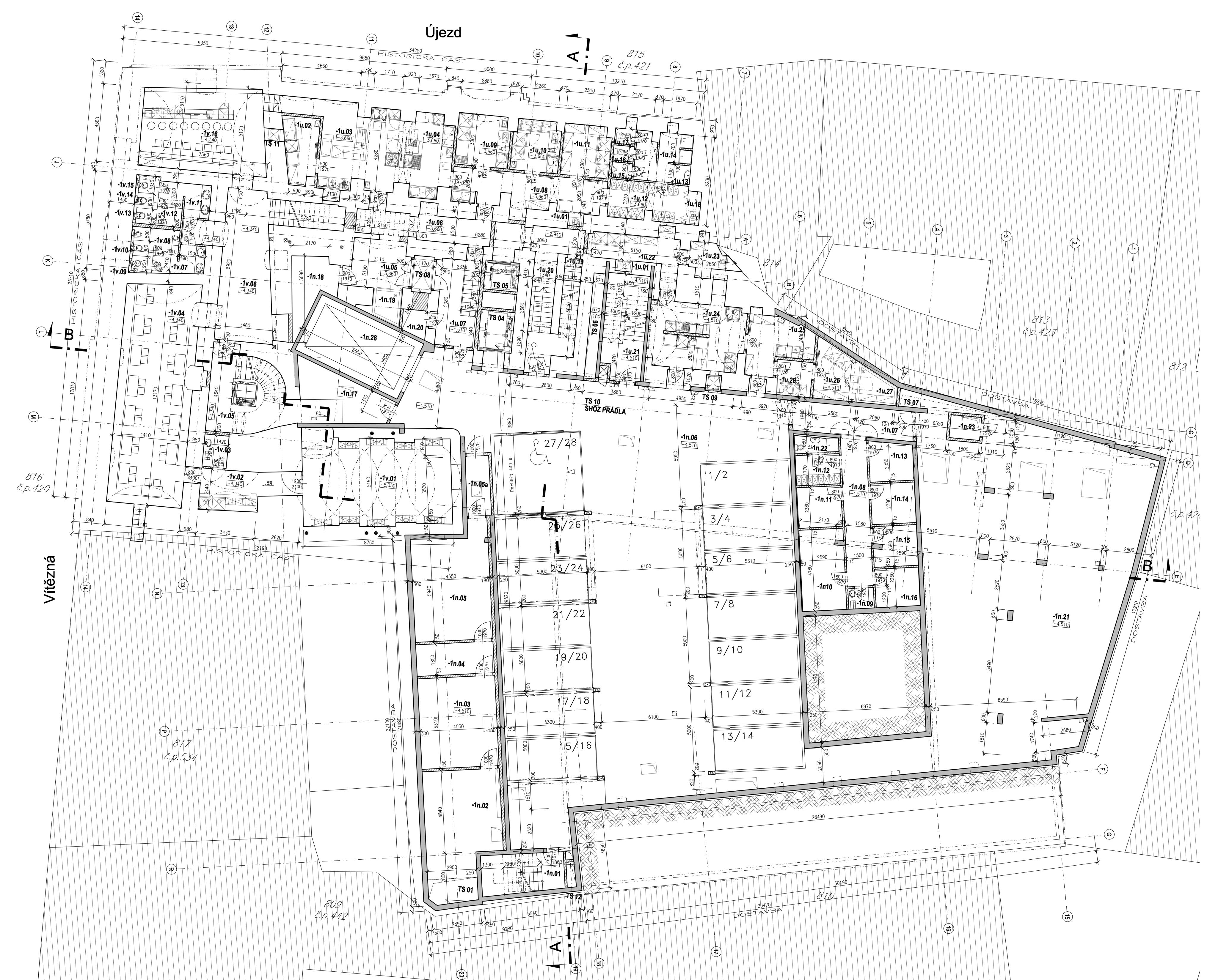
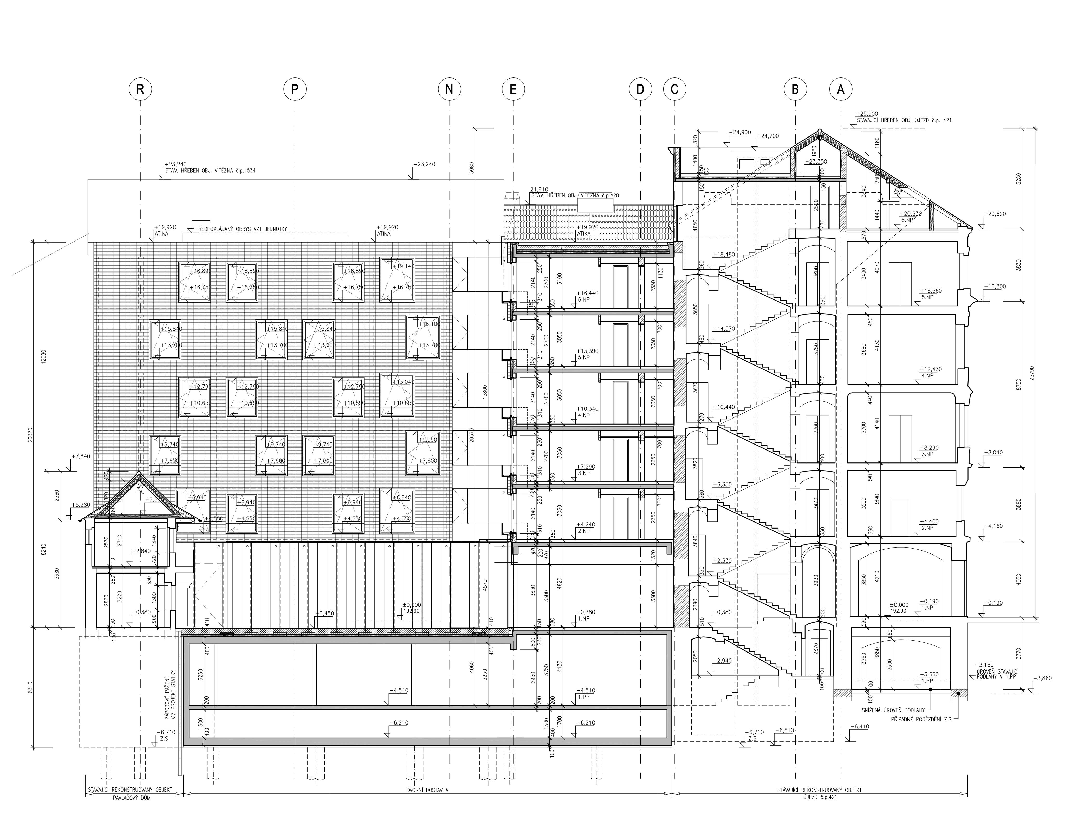
Vestavba 4 nových bytů v podkroví obj. č.p.421, 420, rekonstrukce části dvorního traktu bytů v obj. č.p. 421, dostavba obj. č.p. 421 na hotel garni**** o 63 dvoulůžkových pokojích, rekonstrukce přízemí na část: restaurace, tří samostatných obchodních prostor a samostatného provozu hotelových služeb, rekonstrukce suterénu stávajících objektů na restauraci se zázemím a výstavbu podzemního patra pro TZB, zázemí hotelu a garáže: počet stání 28 z toho 2 stání pro osoby s omezenou schopností pohybu.
autoři
DaM s.r.o.
Richard Doležal
Petr Malinský
Marek Topič
stavební část, koordinace
AED Project a.s.
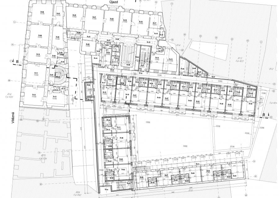
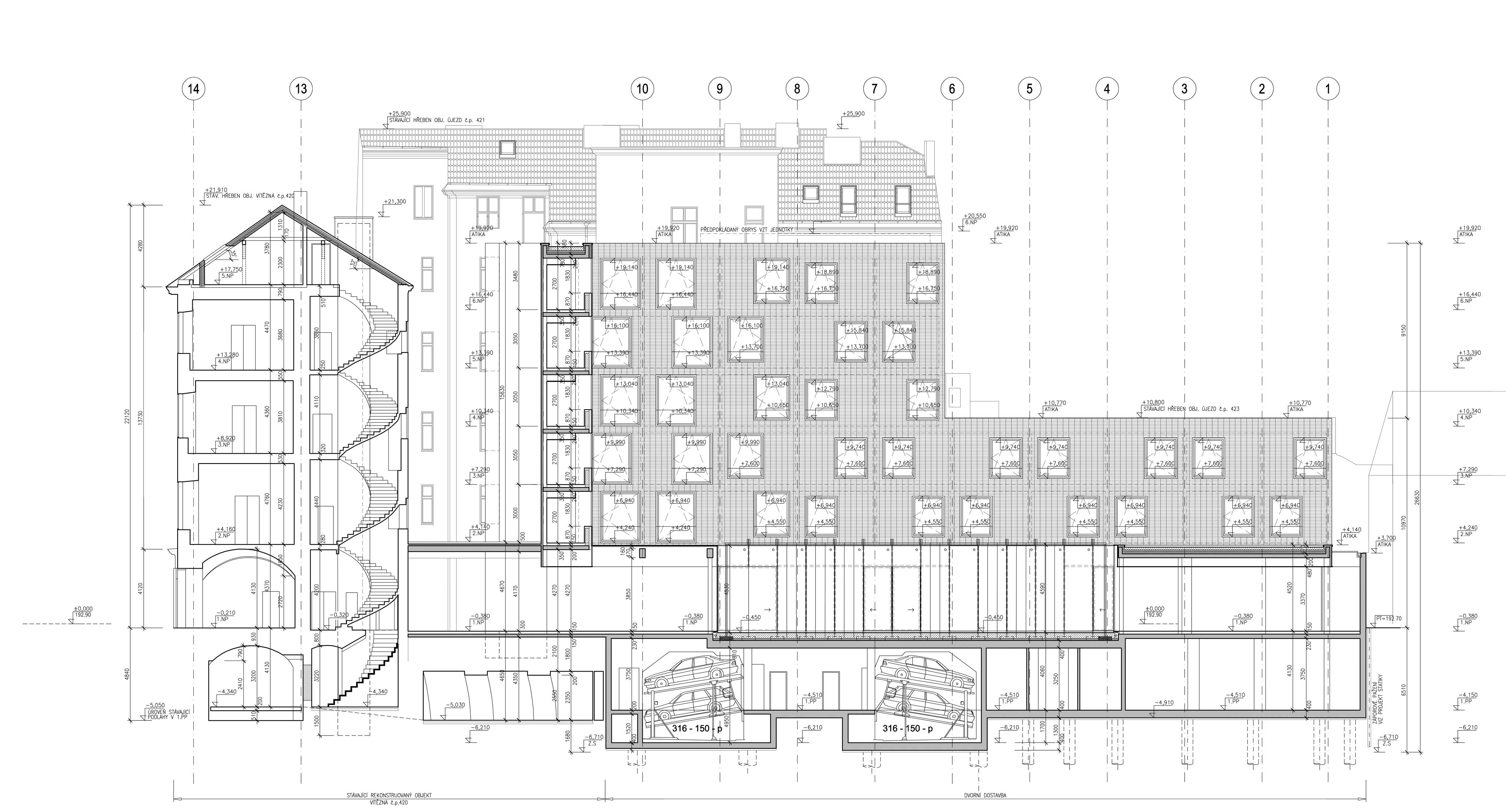
Vestavba 4 nových bytů v podkroví obj. č.p.421, 420, rekonstrukce části dvorního traktu bytů v obj. č.p. 421, dostavba obj. č.p. 421 na hotel garni**** o 63 dvoulůžkových pokojích, rekonstrukce přízemí na část: restaurace, tří samostatných obchodních prostor a samostatného provozu hotelových služeb, rekonstrukce suterénu stávajících objektů na restauraci se zázemím a výstavbu podzemního patra pro TZB, zázemí hotelu a garáže: počet stání 28 z toho 2 stání pro osoby s omezenou schopností pohybu.
autoři
DaM s.r.o.
Richard Doležal
Petr Malinský
Marek Topič
stavební část, koordinace
AED Project a.s.









