„Ano, bydlím přímo v centru v hotelu CARLO IV Boscolo a moje manželka dokonce řekla, že je to nejhezčí hotel, ve kterém kdy pobývala“. (Tiger Woods, 26.7. 2006, 10:08)
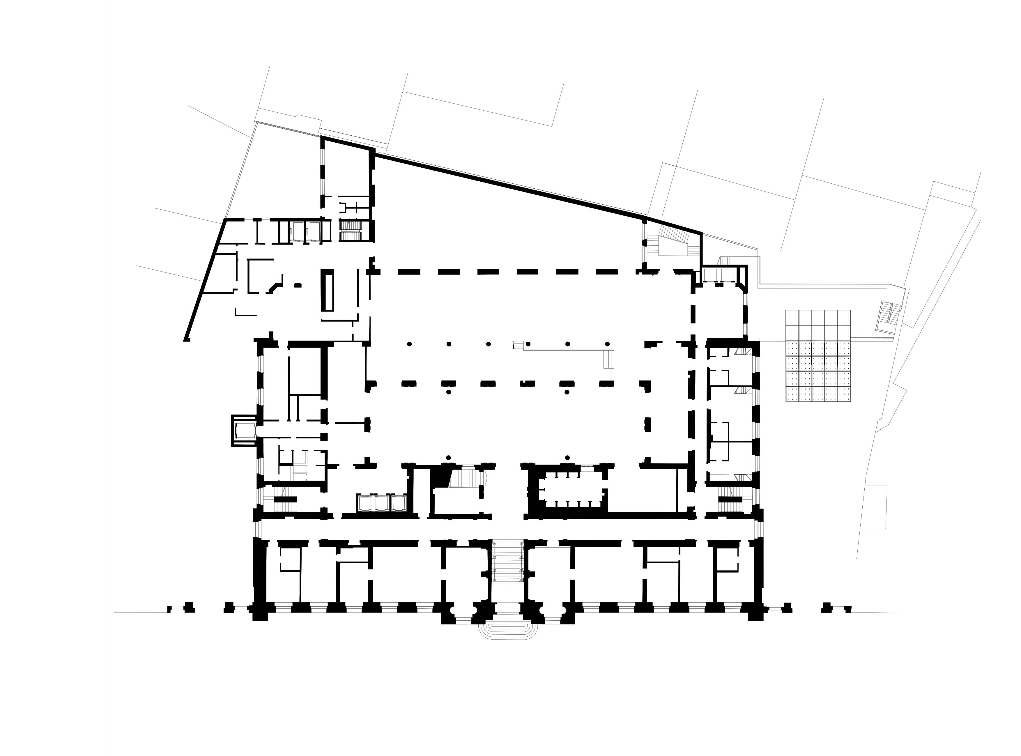
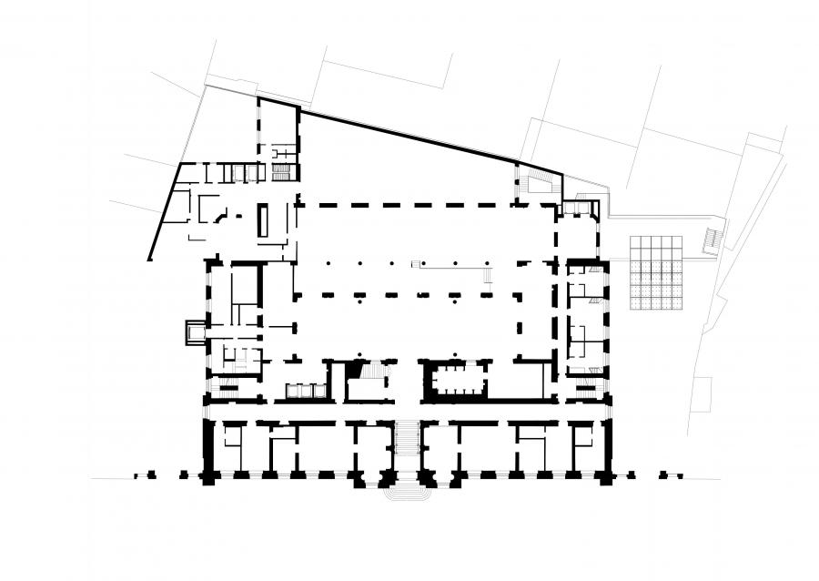
Rekonstrukce původní Hypoteční banky království českého (z roku 1894) na luxusní pěti hvězdičkový hotel Carlo IV (149 pokojů) byla doplněna v prostoru dvora novou šesti podlažní dostavbou a se dvěma suterény. Historická budova neorenesančního paláce má po obou stranách dvory (západní pro zásobování, východní jako nový příjezd k hotelu). Hotel mimo ubytování nabízí gastronomické služby ve dvou restauracích a speciálním kuřáckém baru (původně bankovní trezoru) a také sportovně relaxační služby: bazén ve stylu antických lázní doplněný suchou a parní saunou, posilovnou a kadeřnictvím. Další náplní je kongresová a jednací část (velký sál pro cca 300 osob, střední pro 120 osob a 4 variabilní menší zasedací místnosti).
Při rekonstrukci původní budovy Hypoteční banky Království českého na luxusní pěti hvězdičkový hotel Carlo IV. (149 pokojů) byl historický objekt doplněn v prostoru vnitrobloku novou šesti podlažní dostavbou. Pro nový objekt byla zvolena jednoduchá forma kvádru fasádou s dřevěnými francouzskými okny a předsazenými velkoformátovými skleněnými deskami s vypalovaným sítotiskem v motivu zelených listů. Historická budova neorenesančního paláce má symetricky po obou stranách dvory (západní pro zásobování, východní jako příjezd k hotelu pro taxi a nový bezbariérový vstup); ve dvou suterénech novostavby je umístěna technologie a parkování.
Vstupní lobby hotelu spolu s reprezentativním schodištěm patří k nejcennějším částem historického objektu: originální výmalby byly rekonstruovány stejně jako štukové a dekorativní prvky (např. plastické barevné znaky českých a moravských měst ve fabionu hlavního sálu či kanelované pilastry s kompozitními hlavicemi po jeho obvodu), původní centrální světlík nad prostorem dvorany byl repasován.
Hotel mimo ubytování nabízí kongresovou část se zasedacími sály v přízemí (velký sál pro 250-300 osob, střední pro 120 osob a 4 variabilní menší zasedací místnosti). Nový vstup do hotelu a ke kongresovým prostorům je realizován v severovýchodní části pozemku jako lehký prosklený objem s osmimetrovou markýzou, která kryje prostor vstupu a je na spodní ploše pokryta plátkovým zlatem.
V přízemí je dále umístěno sportovně-relaxační centrum. Bazénová hala inspirovaná duchem antických lázní je vložena do historických prostor původně nahrazujících sklepy domu s pilíři a klenbami.
Hotel poskytuje gastronomické služby ve dvou historických sálech restaurací prvního patra (část snídaní v původním lichoběžníkovém sále se zastropením velkoplošným světlíkem a část s barem a restaurací s kavárnou) nebo ve speciálním kuřáckém baru (zrekonstruované původní bankovní trezory, nyní využity jako skříně pro doutníky a láhve).
Objekt bývalé Hypoteční banky Království českého, čp. 991 na Novém Městě pražském patří k nejzajímavějším stavbám koncipovaným v neorenesančním slohu konce 19. století v českých zemích. V této době, kdy docházelo k nebývalému stavebnímu rozmachu v rámci prudkého rozvoje českého hospodářství a kultury, vznikla řada nejvýznamnějších reprezentačních budov např. Národní a Uměleckoprůmyslové muzeum arch. Schulze, Živnostenská banka arch. Polívky Na příkopě, Česká spořitelna arch. Wiehla a arch. Polívky v Rytířské a další.
Autor Hypoteční banky, architekt Achille Wolf, vycházel ve svém tvůrčím záměru ze zásad neorenesančního slohu vlámského typu, které osobitým způsobem transformoval podle vídeňských předloh do podoby reprezentačního kosmopolitního paláce. Budova Hypoteční banky, navržená v letech 1889-90, byla poslední a nejrozsáhlejší Wolfovou stavbou (zemřel 1891); uplatnil tu nejen inspirace ze svých cest po Itálii, Německu, Anglii a Francii, ale zvláštním způsobem jejich ztvárnění vdechnul paláci esprit a zvláštní kouzlo starobylosti a přepychu. Stavba má výjimečně harmonické měřítko svých proporcí, které ji dodávají vznosnost a eleganci. Zajímavou chrakteristikou je tato budova označena v dobovém tisku (Wolfově nekrologu Zpráv spolku architektů a inženýrů v Čechách z r.1892) jako "svérázná"; je zřejmé, že v i době svého vzniku působila originálně svým individuálním pojetím neorenesančních principů. Stavbu prováděl stavitel Alois Elhenický asi do roku 1894. Figurální výzdoba fasády je dílem sochaře Antonína Poppa (čtyři monumentální alegorické figury - personifikace Práce, Půdy, Kapitálu a Výnosu). Pod okny 3. patra jsou vsazeny desky s kovovými reliéfními plaketami znázorňujícími vývoj mincovnictví Království českého. Dekorativní plastiky exteriéru i interiéru pocházejí z dílny Celdy Kloučka, bohatá výzdoba interiéru malbami a umělecko-řemeslnými prvky byla na vysoké kvalitativní úrovni.
Investor
Boscolo Group
Generální projektant
DaM s.r.o.
Autoři
Dipl.arch.Richard Doležal ETH/SIA
Ing.arch.Jiří Havrda
Ing.arch.Lenka Chromíková
Ing.arch.Petr Malinský
Mgr.arch.Marek Topič
Návrh interiérů
STUDIO PAPIRI, Roma
A.Tihany, N.Y.
Generální dodavatel
PSJ Holding
Project management
Jans s.r.o.
Při rekonstrukci původní budovy Hypoteční banky Království českého na luxusní pěti hvězdičkový hotel Carlo IV. (149 pokojů) byl historický objekt doplněn v prostoru vnitrobloku novou šesti podlažní dostavbou. Pro nový objekt byla zvolena jednoduchá forma kvádru fasádou s dřevěnými francouzskými okny a předsazenými velkoformátovými skleněnými deskami s vypalovaným sítotiskem v motivu zelených listů. Historická budova neorenesančního paláce má symetricky po obou stranách dvory (západní pro zásobování, východní jako příjezd k hotelu pro taxi a nový bezbariérový vstup); ve dvou suterénech novostavby je umístěna technologie a parkování.
Vstupní lobby hotelu spolu s reprezentativním schodištěm patří k nejcennějším částem historického objektu: originální výmalby byly rekonstruovány stejně jako štukové a dekorativní prvky (např. plastické barevné znaky českých a moravských měst ve fabionu hlavního sálu či kanelované pilastry s kompozitními hlavicemi po jeho obvodu), původní centrální světlík nad prostorem dvorany byl repasován.
Hotel mimo ubytování nabízí kongresovou část se zasedacími sály v přízemí (velký sál pro 250-300 osob, střední pro 120 osob a 4 variabilní menší zasedací místnosti). Nový vstup do hotelu a ke kongresovým prostorům je realizován v severovýchodní části pozemku jako lehký prosklený objem s osmimetrovou markýzou, která kryje prostor vstupu a je na spodní ploše pokryta plátkovým zlatem.
V přízemí je dále umístěno sportovně-relaxační centrum. Bazénová hala inspirovaná duchem antických lázní je vložena do historických prostor původně nahrazujících sklepy domu s pilíři a klenbami.
Hotel poskytuje gastronomické služby ve dvou historických sálech restaurací prvního patra (část snídaní v původním lichoběžníkovém sále se zastropením velkoplošným světlíkem a část s barem a restaurací s kavárnou) nebo ve speciálním kuřáckém baru (zrekonstruované původní bankovní trezory, nyní využity jako skříně pro doutníky a láhve).
Objekt bývalé Hypoteční banky Království českého, čp. 991 na Novém Městě pražském patří k nejzajímavějším stavbám koncipovaným v neorenesančním slohu konce 19. století v českých zemích. V této době, kdy docházelo k nebývalému stavebnímu rozmachu v rámci prudkého rozvoje českého hospodářství a kultury, vznikla řada nejvýznamnějších reprezentačních budov např. Národní a Uměleckoprůmyslové muzeum arch. Schulze, Živnostenská banka arch. Polívky Na příkopě, Česká spořitelna arch. Wiehla a arch. Polívky v Rytířské a další.
Autor Hypoteční banky, architekt Achille Wolf, vycházel ve svém tvůrčím záměru ze zásad neorenesančního slohu vlámského typu, které osobitým způsobem transformoval podle vídeňských předloh do podoby reprezentačního kosmopolitního paláce. Budova Hypoteční banky, navržená v letech 1889-90, byla poslední a nejrozsáhlejší Wolfovou stavbou (zemřel 1891); uplatnil tu nejen inspirace ze svých cest po Itálii, Německu, Anglii a Francii, ale zvláštním způsobem jejich ztvárnění vdechnul paláci esprit a zvláštní kouzlo starobylosti a přepychu. Stavba má výjimečně harmonické měřítko svých proporcí, které ji dodávají vznosnost a eleganci. Zajímavou chrakteristikou je tato budova označena v dobovém tisku (Wolfově nekrologu Zpráv spolku architektů a inženýrů v Čechách z r.1892) jako "svérázná"; je zřejmé, že v i době svého vzniku působila originálně svým individuálním pojetím neorenesančních principů. Stavbu prováděl stavitel Alois Elhenický asi do roku 1894. Figurální výzdoba fasády je dílem sochaře Antonína Poppa (čtyři monumentální alegorické figury - personifikace Práce, Půdy, Kapitálu a Výnosu). Pod okny 3. patra jsou vsazeny desky s kovovými reliéfními plaketami znázorňujícími vývoj mincovnictví Království českého. Dekorativní plastiky exteriéru i interiéru pocházejí z dílny Celdy Kloučka, bohatá výzdoba interiéru malbami a umělecko-řemeslnými prvky byla na vysoké kvalitativní úrovni.
Investor
Boscolo Group
Generální projektant
DaM s.r.o.
Autoři
Dipl.arch.Richard Doležal ETH/SIA
Ing.arch.Jiří Havrda
Ing.arch.Lenka Chromíková
Ing.arch.Petr Malinský
Mgr.arch.Marek Topič
Návrh interiérů
STUDIO PAPIRI, Roma
A.Tihany, N.Y.
Generální dodavatel
PSJ Holding
Project management
Jans s.r.o.






























