Úprava vestavby obchodního prostoru B 115 ve 2. NP obchodního domu Carrefour.
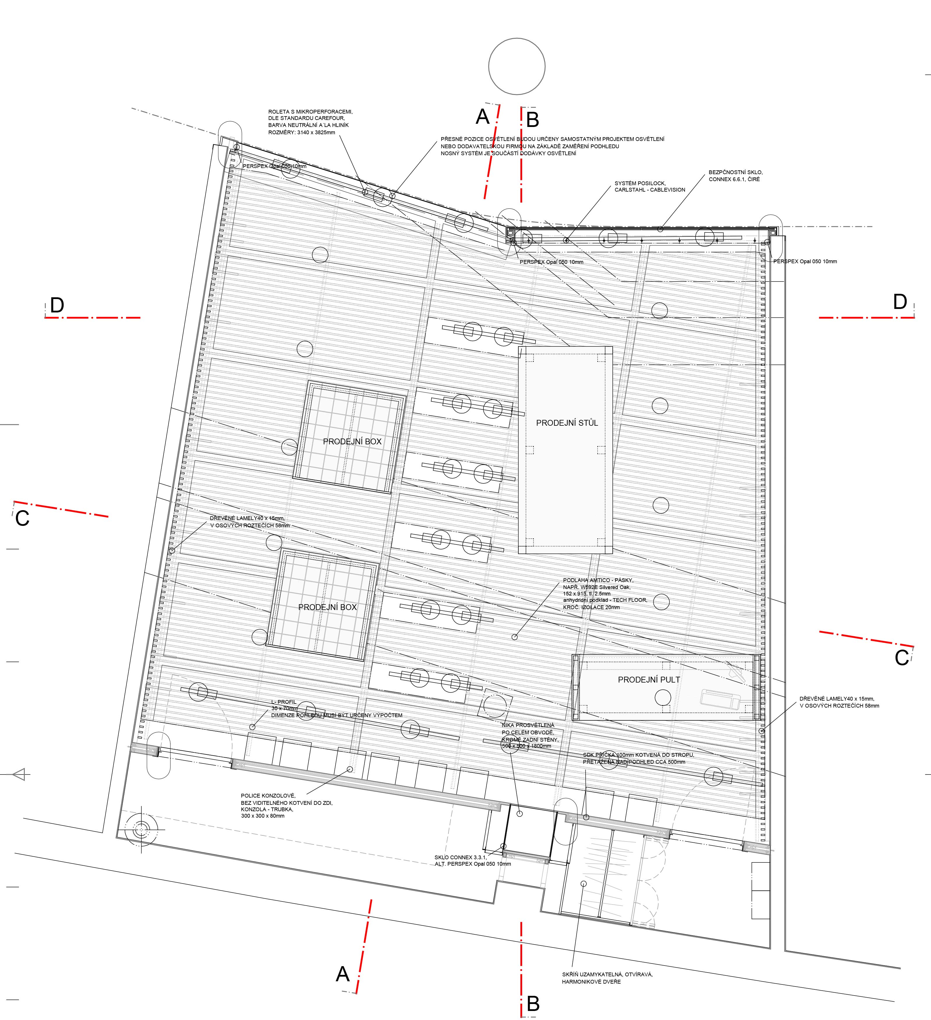
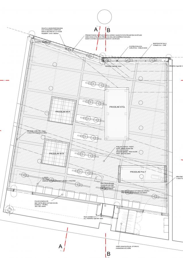
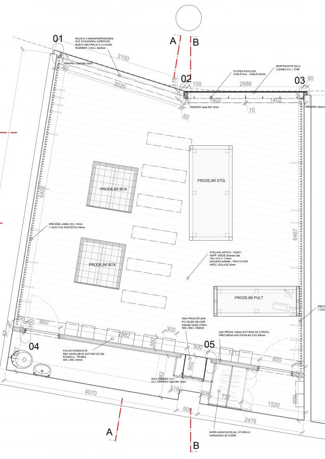
V obchodním prostoru (dále jen OP) bude nabízen široký sortiment převážně textilních výrobků. OP bude předělen na dvě části SDK příčkou. Tato příčka bude oddělovat zázemí zaměstnanců s uzamykatelným prostorem šatní skříně a prostor příručního skladu s umývátkem od prodejní plochy. V rámci zázemí zaměstnanců bude umístěna rozvodná skříň elektro.
investor
Mileta a.s.
autor
Mgr. A. Marek Topič
V obchodním prostoru (dále jen OP) bude nabízen široký sortiment převážně textilních výrobků. OP bude předělen na dvě části SDK příčkou. Tato příčka bude oddělovat zázemí zaměstnanců s uzamykatelným prostorem šatní skříně a prostor příručního skladu s umývátkem od prodejní plochy. V rámci zázemí zaměstnanců bude umístěna rozvodná skříň elektro.
investor
Mileta a.s.
autor
Mgr. A. Marek Topič












