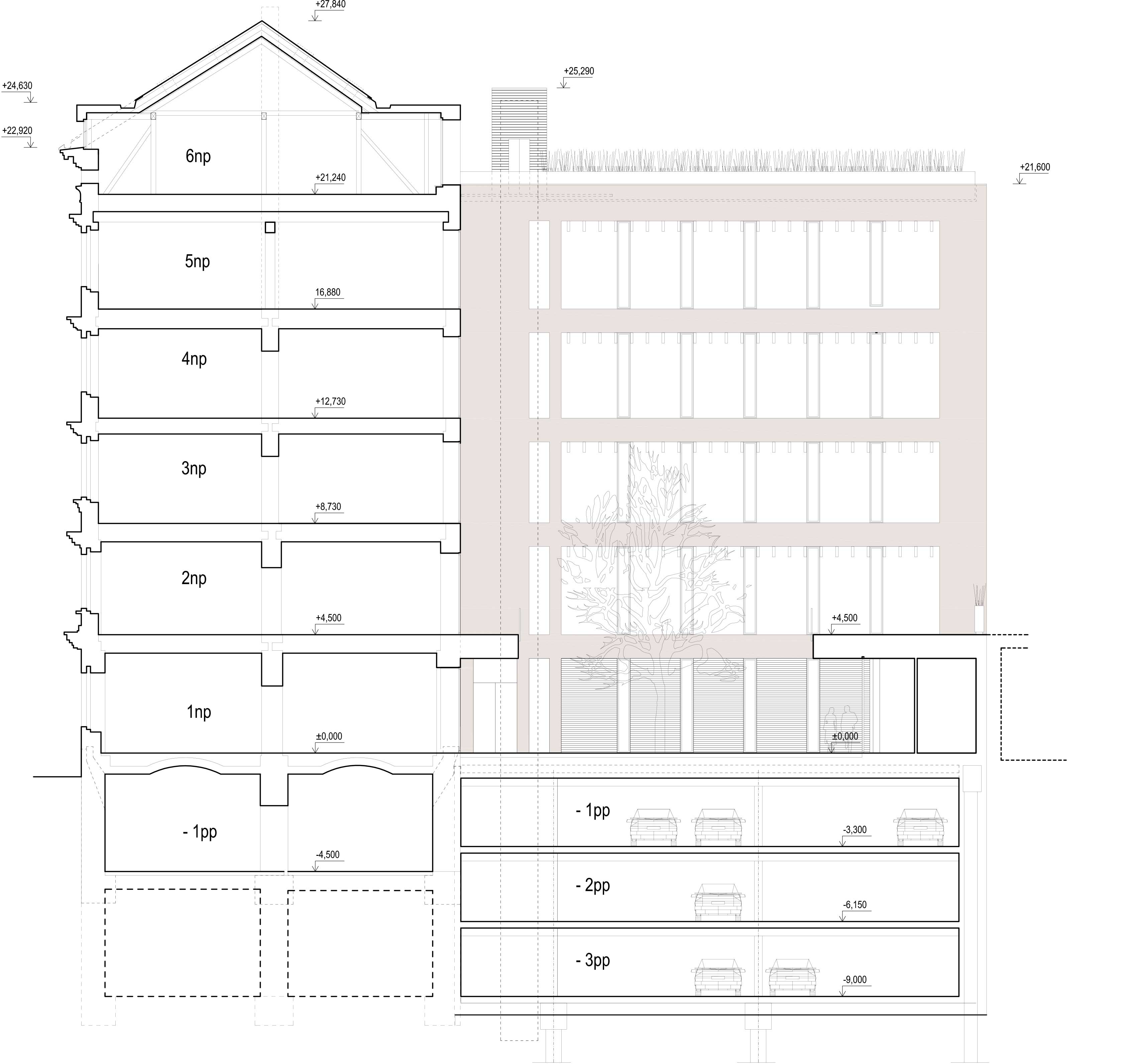
Předmětem architektonického návrhu je rekonstrukce a částečná dostavba dvou stávajících kancelářských objektů čp. 985/47, čp.986/49 (dále jen obj.47, obj.49) v Opletalově ulici na katastrálním území Prahy 1 - Nové město. Záměrem investora je funkčně a prostorově propojit a rozšířit stávající kancelářské objekty s maximálním respektem k charakteru a architektonické hodnotě rekonstruovaných historických budov. Záměr podporuje skutečnost, že oba objekty, byly nejpozději od konce 19. století až po současnost kontinuálně využívány jako kanceláře. Stavební záměr se tedy na daném pozemku jeví jako přirozené pokračovaní historického stavebního vývoje, které nijak nekoliduje s dispozičním, funkčním a prostorovým členěním řešeného souboru objektů ani jeho okolím.
investor
Apuro a.s.
GP, autor architektonického návrhu
MgA. Kamila Amblerová
Mg. A. Jakub Tejkl
Mgr. A. Marek Topič
HIP, stavební část, koordinace profesí
Ing. Michal Pokorný
Ing. Karel Watzko
Ing. Zuzana Šmídová
Předmětem architektonického návrhu je rekonstrukce a částečná dostavba dvou stávajících kancelářských objektů čp. 985/47, čp.986/49 (dále jen obj.47, obj.49) v Opletalově ulici na katastrálním území Prahy 1 - Nové město. Záměrem investora je funkčně a prostorově propojit a rozšířit stávající kancelářské objekty s maximálním respektem k charakteru a architektonické hodnotě rekonstruovaných historických budov. Záměr podporuje skutečnost, že oba objekty, byly nejpozději od konce 19. století až po současnost kontinuálně využívány jako kanceláře. Stavební záměr se tedy na daném pozemku jeví jako přirozené pokračovaní historického stavebního vývoje, které nijak nekoliduje s dispozičním, funkčním a prostorovým členěním řešeného souboru objektů ani jeho okolím.
investor
Apuro a.s.
GP, autor architektonického návrhu
MgA. Kamila Amblerová
Mg. A. Jakub Tejkl
Mgr. A. Marek Topič
HIP, stavební část, koordinace profesí
Ing. Michal Pokorný
Ing. Karel Watzko
Ing. Zuzana Šmídová












